Schaarhefbrug 4 t 1950mm 3x400V MW Tools

€ 3.410,00
GRATIS verzending
Artikelnummer: SL405U

 

Schaarhefbrug 4,0 ton met hefhoogte 1950 mm en platformlengte 1500 – 2100 mm, spanning 3x400V.

Extra zwaar en breed model geschikt voor een scala aan voertuigen van klassieke personenwagens tot  SUV’s, bestelwagens, pickups, gezinswagens, camping cars enz.

Voordelen:

  • Capaciteit 4000 kg
  • Platformlengte instelbaar van 1500 – 2100 mm. De 4 oprijplaten kunnen vlak gezet worden op 2100 mm lengte, en belast op volle capaciteit (4000 kg)
  • Laagste positie 115 mm. Ook geschikt voor sportwagens.
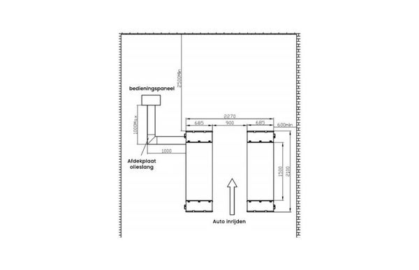
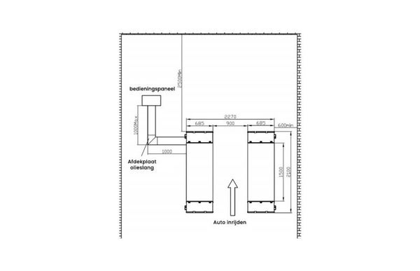
  • Breedte van de brug 2270 mm, geschikt voor bredere en zwaardere voertuigen.
  • Geen verbinding tussen de tafels, vrije doorgang voor alle garage-uitrusting
  • Volautomatische  synchronisatie met optische sensoren

Kenmerken:

  • Spanning 3x400V
  • Maximale hoogte 1950 mm
  • Minimale hoogte 115 mm
  • Opbouw model, geleverd met 4 scharnierende oprijplaten van 685 x 300 mm
  • Platform breedte 685 mm , overmeten breedte van de brug 2270 mm
  • Vrije breedte tussen de platformen 900 mm
  • Aparte bedieningsconsole met drukknoppen uitgerust op 24V laagspanning, de console kan opgesteld worden tot op ongeveer 1,8 meter van de brug
  • Mechanische vergrendeling van de platformen, met pneumatische ontgrendeling bij het zakken.
  • Dubbele voetbeveiliging: wanneer de brug zakt tot op 350 mm, moet de operator het zakken me een extra druk op de knop bevestigen. Dan zal tegelijk een geluidssignaal weerklinken tot de brug op de grond rust.
  • Werktemperatuur: 0°C tot 40°C
  • Veiligheidsklep tegen overbelasting van het oliecircuit
  • Beschermingsklasse: IP54
  • Geluidsniveau : 70db

Geleverd met:

  • 4 rubber blokken 162x102x25mm
  • Aparte bedieningsconsole met elektrisch circuit op 24V laagspanning
  • 1,8 meter stalen kabelgoten met 1 hoekstuk, voor het wegwerken van alle leidingen over de vloer
  • Geleverd met montagematerialen : 8 x ankerbouten M16 x 150mm

Opties:

  • Hydraulische olie Hydro 46. Fles van  5 liter (ref. HYDRO 46 5) De tank is niet voorgevuld bij levering. De tank kan 20 liter olie bevatten.
  • Rubber blok 160x120x35mm (ref. SLRUB35)
  • Rubber blok 160x120x75mm (ref. SLRUB75)

 

 

Specificaties

ORDER NR.

758725116 

 

NIEUW

Origineel nummer

SL405U

Algemeen

 

Capaciteitt

4.0

VermogenkW

2.2

SpanningV

3x400

Afmetingen laadvlakmm

1500 - 2100 x 685

Maximum hoogtemm

1950

Minimum hoogtemm

115

Hefduurs

55

Duurtijd zakkens

55

Afmetingen oprijplaatmm

685x300

Benodigde oliel

20

Gewichtkg

882,00

Afmetingen (l x b x h)mm

2050x2020 x1850